防爆照明配電箱圖紙介紹
作者:admin ? 發布時間:2022-07-06 10:15 ? 瀏覽: 次

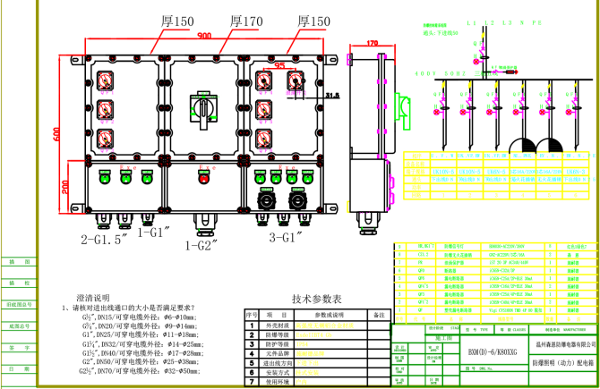
它是一張詳細的防爆照明配電箱工程圖紙,這是由7個分電源開關和1個總閘構成。一開始由顧客發過來路線圖,由我們森恩防爆技術工程師來報價,價錢適合。隨后由技術工程師設計方案外觀設計圖,比如上邊這一臺,它的尺寸是900*600*170,是由6個小殼構成。上邊一部分選用隔爆內腔構成,下邊一部分選用增安內腔構成。差別就是說一個裝電器開關,一個用于接線。下邊是電線出入線孔,這一一般由客戶來確定,孔的尺寸要和鋼管或是防爆軟管相對對應。
這臺防爆照明配電箱的防爆級別是ExdeIIBT4,還有一個更高級的是ExdeIICT4。訂制防爆箱時要向生產廠家明確提出規定:防水等級IP54歸屬于房間內安裝,假如是戶外安裝級別是IP65,也有出入線方法,電子器件知名品牌型號規格,應用環境,安裝方法這些。都能從工程圖紙上見到。因此在制造以前技術工程師務必畫一張工程圖紙給顧客確定。
上一篇:潛污泵防爆控制箱殼體處理
下一篇:防爆照明配電箱安裝簡介
